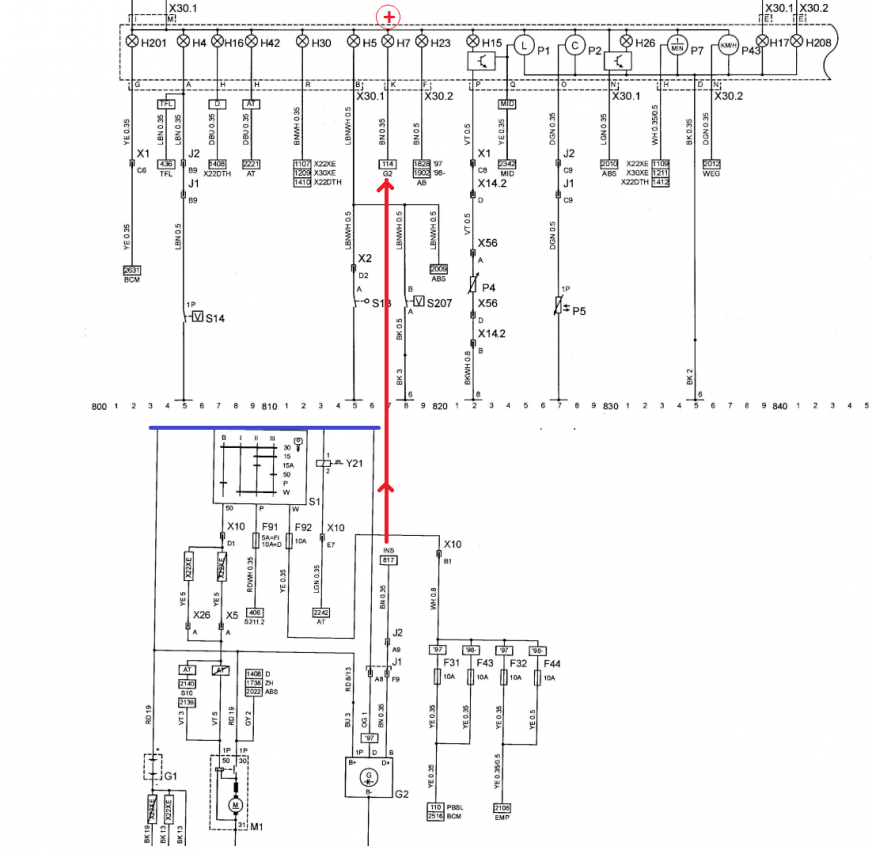
sergemoskva ... но с предохранителем ты ошибся.
По поводу предохранителей . У меня тоже механика . На картинке мой блок предохранителей . В разных схемах обозначения разные . Видимо зависит от года выпуска . Но предохранитель всё таки должен быть независимо от года . Но , в зависимости от года - под другим номером . Возможно предыдущие владельцы уже меняли этот блок - такое тоже может быть . Ну , да , ладно . Замерь внутренний и наружный диаметр токосъёмных колец и тогда можно найти их . Смотри пример (картинка коллектора)
WLL9.jpg
WLL8.jpg
Генератор Kit.jpg
Посмотрел на шилдик на генераторе. Там два номера 2608490А и 10295857. По поводу токосъёмних колец. больше похоже на 230090 Cargo.
Сообщение отредактировал aleg1978: 02 Июнь 2017 - 22:03


Опель Клуб Первый Российский










Помощь